Villa singola in vendita

Montechiarugolo, Via Stanislao Solari - Tortiano
€ 180.000
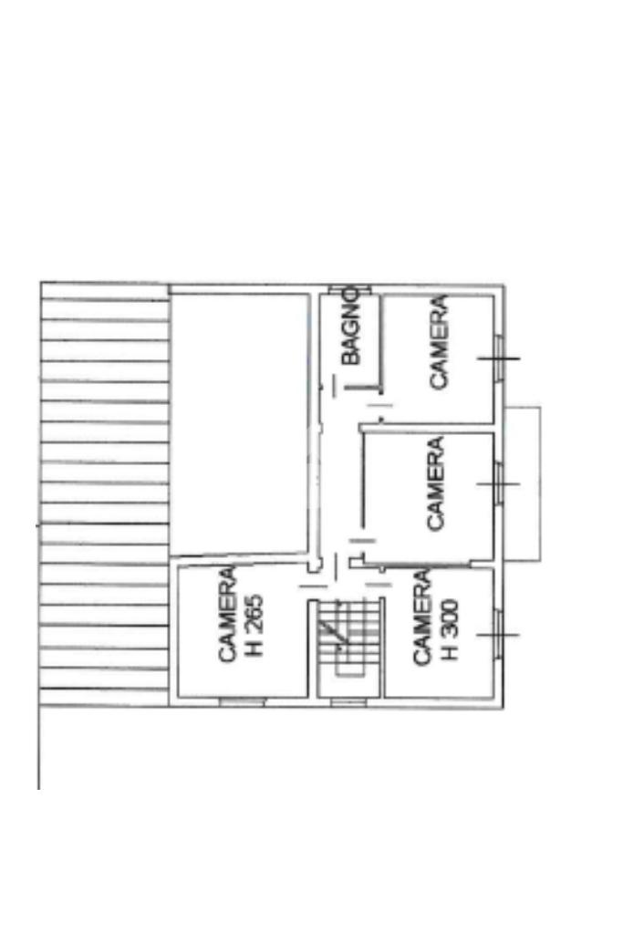
5 locali 5 locali
242 Mq 242 Mq
2 bagni 2 bagni

Villa singola in vendita

Montechiarugolo, Via Stanislao Solari - Tortiano

Descrizione annuncio

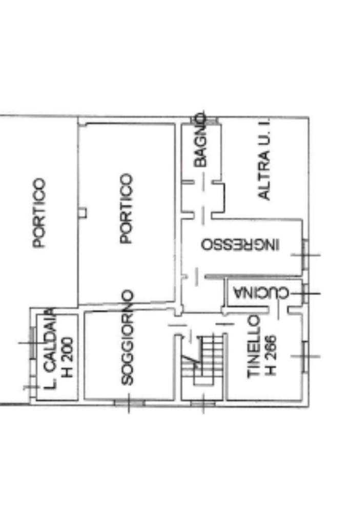
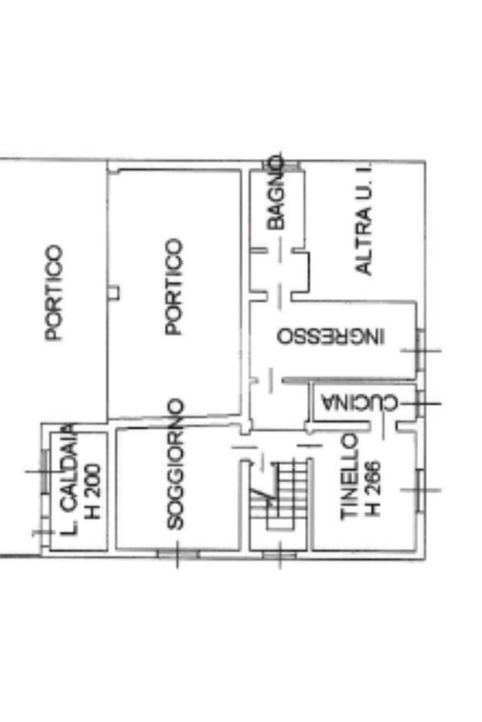
TORTIANO : In posizione tranquilla e ricercata a Tortiano, disponibile spaziosa casa indipendente caratterizzata da generose superfici accessorie e area verde privata.

L’immobile rappresenta un’opportunità rara sul mercato locale grazie alla sua versatilità: la struttura si presta perfettamente per un frazionamento in due appartamenti indipendenti. Ottima soluzione per genitori e figli o per chi desidera vivere in una porzione e mettere a reddito la seconda.

Caratteristiche principali:

Area cortilizia e giardino privato.

Ampi locali accessori (cantine/garage/soffitte).

Struttura solida e ampiamente personalizzabile.

UFFICIO : 388/986 6806

Se è vostra intenzione VENDERE o AFFITTARE un immobile contattandoci allo 0521/84.13.99 o scrivendoci su whatsapp al 391/3210657 vi forniremo una VALUTAZIONE GRATUITA, in modo tale da tener aggiornato il valore secondo i recenti sviluppi del mercato immobiliare.
Se invece CERCATE in ACQUISTO o in AFFITTO un immobile, senza alcun impegno, vi forniremo maggiori indicazioni su ciò che è presente nel mercato, seguendovi costantemente nella vostra ricerca.

Mostra tutto

Caratteristiche

Rif.:
61195437
Piano:
2 di 2 (Piano su più livelli)
Box:
1
Posti auto:
2
Balconi:
1
Camere da letto:
4
Mostra tutto
Prezzo Prezzo
€ 180.000
Rata mutuo Rata mutuo
€ 855 / mese
Spese annue Spese annue
€ 0
Proponi il tuo prezzoProponi il tuo prezzo

Classe Energetica

G
G
G
G
G
G
G
G
G
EP globale non rinnovabile:
999.99 kW h/m² anno
EP globale rinnovabile:
999.99 kW h/m² anno
EP invernale del fabbricato:
EP estiva del fabbricato:
Anno di costruzione:
1967
Riscaldamento:
Autonomo
Tipo impianto:
A radiatori
Tipo alimentazione:
GPL

Ti interessa visionare l'immobile?

Fissa un appuntamento  Fissa un appuntamento

Richiedi informazioni

Clicca su Leggi per aprire l'informativa
* Questi campi sono obbligatori

Calcola il tuo mutuo

Semplice e senza impegno
Anticipo

( % )
Mutuo

( % )

pochi semplici passi

inserisci i tuoi dati
Questionario completato
Grazie per aver richiesto un appuntamento senza impegno con un nostro Consulente del Credito e Assicurativo.

Hai inserito correttamente tutti i dati necessari e a breve riceverai una e-mail con un link da convalidare per inviare i tuoi dati.
Affiliato
Polaris Srls
St.da Pedemontana per Bannone, 8 43029 Traversetolo (PR)

Il nostro staff


  • Antimo Esposito
    Affiliato

  • Mona Maria Hamchou
    Coordinatrice

  • Petru Chitoroaga
    Collaboratore

  • Alessandro Lucchetti
    Affiliato

  • Simone Mongelli
    Collaboratore

  • Marife Apolito
    Collaboratrice
St.da Pedemontana per Bannone, 8 43029 Traversetolo (PR)
Zona: Traversetolo-Neviano degli Arduini-Monticelli Terme-Montechiarugolo-Botteghino
Mostra su mappa
Orari: Dal Lunedì al Venerdì: 9:00 - 13:00 / 15:00 - 20:00 Sabato: 10:00 - 18:00
Affiliato
Polaris Srls
St.da Pedemontana per Bannone, 8 43029 Traversetolo (PR)

2026 Tecnocasa Franchising S.p.A. - P. IVA 08365160152 - Via Monte Bianco 60/A 20089 Rozzano (MI). Ogni agenzia ha un proprio titolare ed è autonoma. Privacy policy | Policy utilizzo | Cookie policy