Bilocale in vendita

Parma, Via alberto Sordi - Campus
€ 225.000
2 locali 2 locali
65 Mq 65 Mq
1 bagno 1 bagno

Bilocale in vendita

Parma, Via alberto Sordi - Campus

Descrizione annuncio

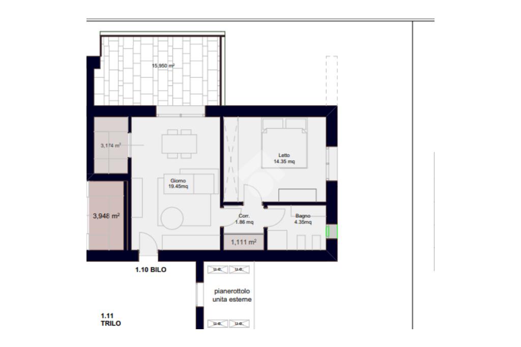
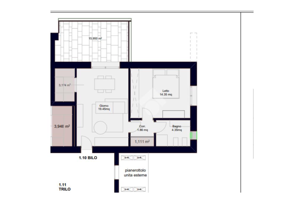
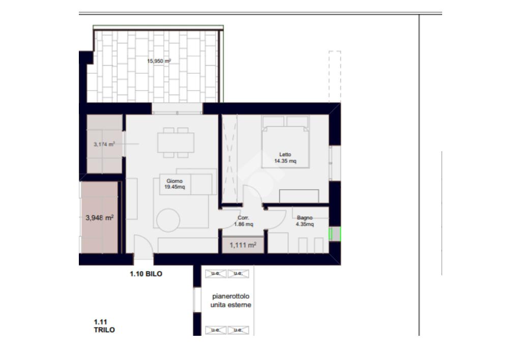
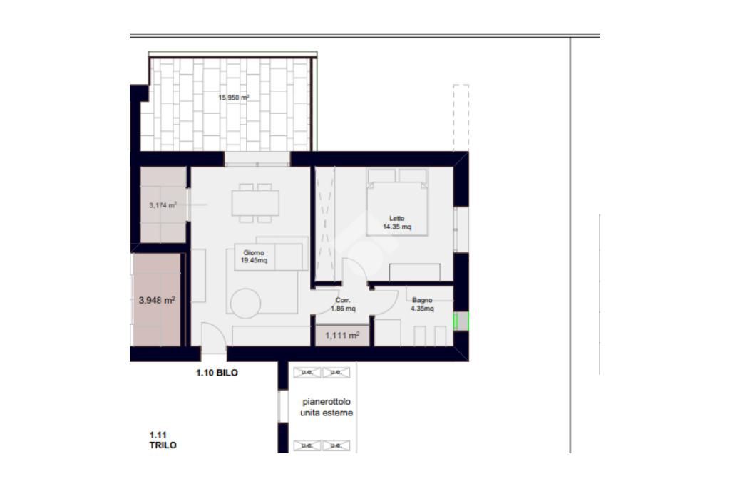
CAMPUS : In zona residenziale tranquilla e strategica, dietro al Famila e al Campus, proponiamo in vendita un ampio bilocale di nuova costruzione situato al secondo piano, dotato di terrazzo con accesso dalla zona giorno, perfetto per godersi momenti di relax all’aperto in totale privacy e comfort.

L’appartamento, realizzato con tecnologie costruttive di ultima generazione, offre massima efficienza energetica, comfort abitativo e finiture moderne. La zona giorno è ampia e luminosa, con cucina a vista e accesso diretto al terrazzo. La camera matrimoniale è spaziosa e accogliente, mentre il bagno principale presenta finiture di design e materiali di qualità.

All’interno del complesso residenziale è prevista la realizzazione di un ambiente esclusivo e multifunzionale riservato ai residenti, concepito come palestra interna o area fitness, ideale per chi desidera mantenersi in forma senza rinunciare alla comodità di casa.

La posizione è strategica e servita, a pochi passi da supermercati, scuole, aree verdi e impianti sportivi, con ottimi collegamenti verso Parma, città ricca di storia, arte e cultura. Grazie alla sua vivace scena gastronomica, ai teatri, ai musei e ai suggestivi percorsi tra borghi e piazze storiche, Parma offre un mix perfetto tra qualità della vita, opportunità culturali e comodità urbana, rendendo questa soluzione ideale per chi vuole vivere in un contesto elegante e contemporaneo senza rinunciare alla vicinanza alla città.

Una soluzione moderna, elegante e funzionale, perfetta per chi cerca indipendenza, qualità costruttiva e comfort in una delle zone più richieste di Parma, con il valore aggiunto di essere a due passi da Parma.

Mostra tutto

Nelle vicinanze

Trasporto pubblico Trasporto pubblico
Trasporto pubblico
570 m
viale delle Scienze "Conad"
viale delle Scienze "Conad"
580 m
Ricariche auto elettriche Ricariche auto elettriche
Campus Parma | EnelX
620 m
Scuole Scuole
Scuola per l'Europa Parma
400 m
Scuole
990 m
Istituto De La Salle
1,0 Km
Università di Parma - Campus
1,1 Km
Scuola Primaria "Martiri di Cefalonia"
2,0 Km
Farmacia Farmacia
Farmacia Ponte Dattaro
2,2 Km
Farmacia Eurosia
2,4 Km
Farmacia Amadasi
2,9 Km
Ospedali Ospedali
Casa di Cura Città di Parma
2,9 Km
Supermercati Supermercati
Famila Superstore
220 m
Conad Campus
660 m
Eurospin
1,2 Km
IN's
1,9 Km
Coop
2,1 Km
Negozi Negozi
Negozi
2,4 Km
Tognoni
2,4 Km
Il pane di Luciano
2,9 Km
Gelateria
2,9 Km
Bar Bar
Metropolis
420 m
Campus Industry Music
590 m
Bar
610 m
Ramon
2,3 Km
Bar Campioni
2,6 Km
Ristoranti Ristoranti
Ristorante Giapponese Sushiko
210 m
100Montaditos Parma Campus
210 m
Old Wild West
500 m
La Meta
590 m
Parmarotta
1,0 Km
Mostra tutto

Caratteristiche

Rif.:
61135764
Piano:
2 di 2 con ascensore (Piano ammezzato)
Terrazzi:
1
Camere da letto:
1
Arredamento:
Assente
Condizionamento:
Autonomo
Mostra tutto
Prezzo Prezzo
€ 225.000
Rata mutuo Rata mutuo
€ 1.069 / mese
Spese annue Spese annue
€ 0
Proponi il tuo prezzoProponi il tuo prezzo

Classe Energetica

A4
A4
A4
A4
A4
A4
A4
A4
A4
Anno di costruzione:
2026
Riscaldamento:
Autonomo
Tipo impianto:
Ad aria
Tipo alimentazione:
Pannelli

Ti interessa visionare l'immobile?

Fissa un appuntamento  Fissa un appuntamento

Richiedi informazioni

Clicca su Leggi per aprire l'informativa
* Questi campi sono obbligatori

Calcola il tuo mutuo

Semplice e senza impegno
Anticipo

( % )
Mutuo

( % )

pochi semplici passi

inserisci i tuoi dati
Questionario completato
Grazie per aver richiesto un appuntamento senza impegno con un nostro Consulente del Credito e Assicurativo.

Hai inserito correttamente tutti i dati necessari e a breve riceverai una e-mail con un link da convalidare per inviare i tuoi dati.
Affiliato
Polaris Srls
St.da Pedemontana per Bannone, 8 43029 Traversetolo (PR)

Il nostro staff


  • Antimo Esposito
    Affiliato

  • Mona Maria Hamchou
    Coordinatrice

  • Petru Chitoroaga
    Collaboratore

  • Alessandro Lucchetti
    Affiliato

  • Simone Mongelli
    Collaboratore

  • Marife Apolito
    Collaboratrice
St.da Pedemontana per Bannone, 8 43029 Traversetolo (PR)
Zona: Traversetolo-Neviano degli Arduini-Monticelli Terme-Montechiarugolo-Botteghino
Mostra su mappa
Orari: Dal Lunedì al Venerdì: 9:00 - 13:00 / 15:00 - 20:00 Sabato: 10:00 - 18:00
Affiliato
Polaris Srls
St.da Pedemontana per Bannone, 8 43029 Traversetolo (PR)

2026 Tecnocasa Franchising S.p.A. - P. IVA 08365160152 - Via Monte Bianco 60/A 20089 Rozzano (MI). Ogni agenzia ha un proprio titolare ed è autonoma. Privacy policy | Policy utilizzo | Cookie policy