Bilocale in vendita

Parma, via alberto sordi
€ 200.000
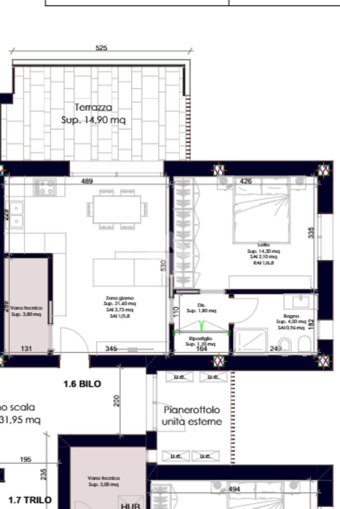
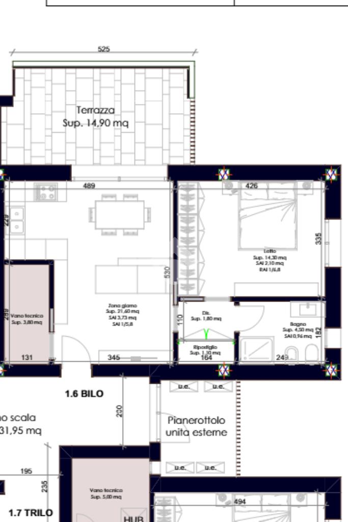
2 locali 2 locali
65 Mq 65 Mq
1 bagno 1 bagno

Bilocale in vendita

Parma, via alberto sordi

Descrizione annuncio

– Il nuovo modo di abitare a Parma (Via Langhirano)
Bilocali, trilocali e attici A4 NZEB – design, tecnologia e terrazze da vivere

Nel nuovo quartiere elegante e verde di Via Langhirano prende vita un complesso residenziale innovativo composto da due palazzine moderne collegate da un ambiente polifunzionale dedicato al fitness e al benessere.
Un progetto esclusivo che unisce architettura contemporanea, comfort assoluto e tecnologie di ultima generazione per offrire un’esperienza abitativa superiore.

IL COMPLESSO – Modernità, armonia, qualità

- Due edifici di 4 piani fuori terra + piano interrato
-Garage e cantine collegati da ascensore
-Posti auto coperti e scoperti
-Giardini condominiali e spazi verdi finemente curati
- Ingresso scenografico con vialetto illuminato, videocitofono e area comune di accoglienza

Un contesto progettato per trasmettere ordine, eleganza e una sensazione immediata di casa di qualità.

LE RESIDENZE – Spazi pensati per vivere meglio

Ogni palazzina ospita:

2 bilocali e 2 trilocali per piano (terra, primo, secondo, terzo)

2 attici quadrilocali panoramici all’ultimo piano

Pianoterra con grandi giardini privati

Piani superiori con ampie terrazze e fioriere integrate dal design pulito

Ogni abitazione è progettata per massimizzare luce, privacy e benessere quotidiano.

TECNOLOGIA & COMFORT – Abitare il futuro, oggi

-Classe energetica A4 NZEB
- Edificio completamente NO GAS
-Riscaldamento e raffrescamento canalizzato
-comfort uniforme, nessun termosifone a vista, design pulito
-VMC – Ventilazione Meccanica Controllata
→ aria filtrata, umidità regolata, benessere continuo
- Fotovoltaico 3 kW + batteria 5 kW per ogni unità
→ autonomia energetica, consumi ridotti
- Oscuranti, tapparelle e frangisole motorizzati
- Infissi in PVC con vetrocamera + scorrevoli di qualità
- Predisposizione allarme
- Ascensori di ultima generazione

Una dotazione tecnica pensata per garantire efficienza, risparmio e un comfort reale, ogni giorno.

FINITURE – Dettagli che fanno la differenza

- Gres porcellanato 100×100 / 60×120 / 50×100
- Terrazzi con gres R11 antiscivolo
- Sanitari Ideal Standard, rubinetteria Grohe
- Portoncini blindati e porte moderne
- Ampia scelta di materiali presso showroom dedicato

Eleganza, qualità e personalizzazione: la casa si costruisce intorno a te.

POSIZIONE – Verde, servizi, comodità

A pochi passi da:

Campus universitario

Supermercati, negozi, scuole

Parchi e aree verdi

Collegamenti veloci verso il centro

Un indirizzo strategico: tranquillo, servito, con tutto a portata di passeggiata.

- non è solo una casa, ma uno stile di vita.

Un progetto dedicato a chi cerca design, efficienza, tecnologia e spazi aperti da vivere.

Maria 3669521453

Mostra tutto

Nelle vicinanze

Trasporto pubblico Trasporto pubblico
Trasporto pubblico
560 m
viale delle Scienze "Conad"
viale delle Scienze "Conad"
580 m
Ricariche auto elettriche Ricariche auto elettriche
Campus Parma | EnelX
620 m
Scuole Scuole
Scuola per l'Europa Parma
410 m
Scuole
980 m
Istituto De La Salle
1,0 Km
Università di Parma - Campus
1,1 Km
Scuola Primaria "Martiri di Cefalonia"
1,9 Km
Farmacia Farmacia
Farmacia Ponte Dattaro
2,2 Km
Farmacia Eurosia
2,3 Km
Farmacia Amadasi
2,9 Km
Ospedali Ospedali
Casa di Cura Città di Parma
2,8 Km
Piccole Figlie Hospital
3,0 Km
Supermercati Supermercati
Famila Superstore
210 m
Conad Campus
660 m
Eurospin
1,2 Km
IN's
1,9 Km
Coop
2,1 Km
Negozi Negozi
Negozi
2,4 Km
Tognoni
2,4 Km
Gelateria
2,9 Km
Il pane di Luciano
2,9 Km
Bar Bar
Metropolis
400 m
Campus Industry Music
580 m
Bar
610 m
Ramon
2,3 Km
Bar Campioni
2,6 Km
Ristoranti Ristoranti
Ristorante Giapponese Sushiko
190 m
100Montaditos Parma Campus
190 m
Old Wild West
490 m
La Meta
580 m
Parmarotta
1,0 Km
Mostra tutto

Caratteristiche

Rif.:
61135791
Piano:
1 di 4 con ascensore (Piano basso)
Terrazzi:
1
Camere da letto:
1
Arredamento:
Assente
Condizionamento:
Autonomo
Mostra tutto
Prezzo Prezzo
€ 200.000
Rata mutuo Rata mutuo
€ 950 / mese
Spese annue Spese annue
€ 0
Proponi il tuo prezzoProponi il tuo prezzo

Classe Energetica

A4
A4
A4
A4
A4
A4
A4
A4
A4
EP invernale del fabbricato:
EP estiva del fabbricato:
Anno di costruzione:
2026
Riscaldamento:
Autonomo
Tipo impianto:
Ad aria
Tipo alimentazione:
Pannelli

Ti interessa visionare l'immobile?

Fissa un appuntamento  Fissa un appuntamento

Richiedi informazioni

Clicca su Leggi per aprire l'informativa
* Questi campi sono obbligatori

Calcola il tuo mutuo

Semplice e senza impegno
Anticipo

( % )
Mutuo

( % )

pochi semplici passi

inserisci i tuoi dati
Questionario completato
Grazie per aver richiesto un appuntamento senza impegno con un nostro Consulente del Credito e Assicurativo.

Hai inserito correttamente tutti i dati necessari e a breve riceverai una e-mail con un link da convalidare per inviare i tuoi dati.
Affiliato
Polaris Srls
St.da Pedemontana per Bannone, 8 43029 Traversetolo (PR)

Il nostro staff


  • Antimo Esposito
    Affiliato

  • Mona Maria Hamchou
    Coordinatrice

  • Petru Chitoroaga
    Collaboratore

  • Alessandro Lucchetti
    Affiliato

  • Simone Mongelli
    Collaboratore

  • Marife Apolito
    Collaboratrice
St.da Pedemontana per Bannone, 8 43029 Traversetolo (PR)
Zona: Traversetolo-Neviano degli Arduini-Monticelli Terme-Montechiarugolo-Botteghino
Mostra su mappa
Orari: Dal Lunedì al Venerdì: 9:00 - 13:00 / 15:00 - 20:00 Sabato: 10:00 - 18:00
Affiliato
Polaris Srls
St.da Pedemontana per Bannone, 8 43029 Traversetolo (PR)

2026 Tecnocasa Franchising S.p.A. - P. IVA 08365160152 - Via Monte Bianco 60/A 20089 Rozzano (MI). Ogni agenzia ha un proprio titolare ed è autonoma. Privacy policy | Policy utilizzo | Cookie policy