Bilocale in vendita

Parma, Via alberto Sordi - Campus
€ 220.000
2 locali 2 locali
65 Mq 65 Mq
1 bagno 1 bagno

Bilocale in vendita

Parma, Via alberto Sordi - Campus

Descrizione annuncio

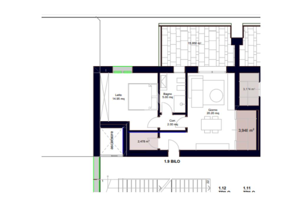
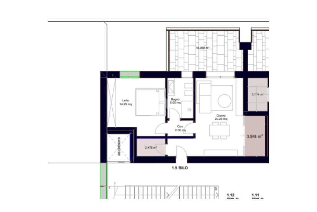
CAMPUS : In posizione centrale e comoda ai principali servizi, proponiamo in vendita un ampio bilocale di nuova costruzione situato in Via Alberto Sordi, in una delle zone più ricercate del campus

L’appartamento, realizzato con tecnologie di ultima generazione, garantisce massimo comfort abitativo, efficienza energetica e design contemporaneo. La zona giorno, spaziosa e luminosa, dispone di cucina a vista e si apre su un terrazzo di 16 mq, perfetto per rilassarsi o per pranzi e cene all’aperto. La camera matrimoniale è accogliente e ben organizzata, mentre il bagno presenta finiture moderne e materiali di pregio.

Il complesso residenziale include un ambiente esclusivo e multifunzionale destinato ai residenti, pensato come palestra interna o area fitness, ideale per chi desidera mantenere uno stile di vita attivo senza rinunciare alla comodità di casa.

La posizione è strategica: , a pochi passi da supermercati, negozi, scuole e mezzi pubblici, e a soli pochi minuti da Parma, città d’arte e cultura, rinomata per la sua qualità della vita e le eccellenze gastronomiche.

Un’abitazione moderna, elegante e funzionale, perfetta per chi cerca comfort, indipendenza e una posizione privilegiata nel centro di Parma.

Mostra tutto

Nelle vicinanze

Trasporto pubblico Trasporto pubblico
viale delle Scienze "Conad"
viale delle Scienze "Conad"
540 m
Trasporto pubblico
540 m
Ricariche auto elettriche Ricariche auto elettriche
Campus Parma | EnelX
590 m
Scuole Scuole
Scuola per l'Europa Parma
320 m
Scuole
960 m
Università di Parma - Campus
1,0 Km
Istituto De La Salle
1,0 Km
Scuola Primaria "Martiri di Cefalonia"
1,9 Km
Farmacia Farmacia
Farmacia Ponte Dattaro
2,2 Km
Farmacia Eurosia
2,4 Km
Farmacia Amadasi
3,0 Km
Ospedali Ospedali
Casa di Cura Città di Parma
2,9 Km
Piccole Figlie Hospital
3,0 Km
Supermercati Supermercati
Famila Superstore
210 m
Conad Campus
620 m
Eurospin
1,2 Km
IN's
1,9 Km
Coop
2,1 Km
Negozi Negozi
Negozi
2,4 Km
Tognoni
2,4 Km
Il pane di Luciano
3,0 Km
Gelateria
3,0 Km
Bar Bar
Metropolis
480 m
Bar
570 m
Campus Industry Music
620 m
Ramon
2,3 Km
Bar Campioni
2,6 Km
Ristoranti Ristoranti
Ristorante Giapponese Sushiko
220 m
100Montaditos Parma Campus
240 m
Old Wild West
470 m
La Meta
610 m
Parmarotta
1,0 Km
Mostra tutto

Caratteristiche

Rif.:
61135942
Piano:
3 di 4 con ascensore (Piano alto)
Terrazzi:
1
Camere da letto:
1
Arredamento:
Assente
Condizionamento:
Autonomo
Mostra tutto
Prezzo Prezzo
€ 220.000
Prezzo box Prezzo box
€ 22.000
Rata mutuo Rata mutuo
€ 1.045 / mese
Spese annue Spese annue
€ 0
Proponi il tuo prezzoProponi il tuo prezzo

Classe Energetica

A4
A4
A4
A4
A4
A4
A4
A4
A4
EP invernale del fabbricato:
EP estiva del fabbricato:
Anno di costruzione:
2026
Riscaldamento:
Autonomo
Tipo impianto:
Ad aria
Tipo alimentazione:
Pannelli

Ti interessa visionare l'immobile?

Fissa un appuntamento  Fissa un appuntamento

Richiedi informazioni

Clicca su Leggi per aprire l'informativa
* Questi campi sono obbligatori

Calcola il tuo mutuo

Semplice e senza impegno
Anticipo

( % )
Mutuo

( % )

pochi semplici passi

inserisci i tuoi dati
Questionario completato
Grazie per aver richiesto un appuntamento senza impegno con un nostro Consulente del Credito e Assicurativo.

Hai inserito correttamente tutti i dati necessari e a breve riceverai una e-mail con un link da convalidare per inviare i tuoi dati.
Affiliato
Polaris Srls
St.da Pedemontana per Bannone, 8 43029 Traversetolo (PR)

Il nostro staff


  • Antimo Esposito
    Affiliato

  • Mona Maria Hamchou
    Coordinatrice

  • Petru Chitoroaga
    Collaboratore

  • Alessandro Lucchetti
    Affiliato

  • Simone Mongelli
    Collaboratore

  • Marife Apolito
    Collaboratrice
St.da Pedemontana per Bannone, 8 43029 Traversetolo (PR)
Zona: Traversetolo-Neviano degli Arduini-Monticelli Terme-Montechiarugolo-Botteghino
Mostra su mappa
Orari: Dal Lunedì al Venerdì: 9:00 - 13:00 / 15:00 - 20:00 Sabato: 10:00 - 18:00
Affiliato
Polaris Srls
St.da Pedemontana per Bannone, 8 43029 Traversetolo (PR)

2026 Tecnocasa Franchising S.p.A. - P. IVA 08365160152 - Via Monte Bianco 60/A 20089 Rozzano (MI). Ogni agenzia ha un proprio titolare ed è autonoma. Privacy policy | Policy utilizzo | Cookie policy