Casa indipendente in vendita

Traversetolo, Strada pedemontana vignale - Vignale
€ 180.000
5 locali 5 locali
266 Mq 266 Mq
2 bagni 2 bagni

Casa indipendente in vendita

Traversetolo, Strada pedemontana vignale - Vignale

Descrizione annuncio

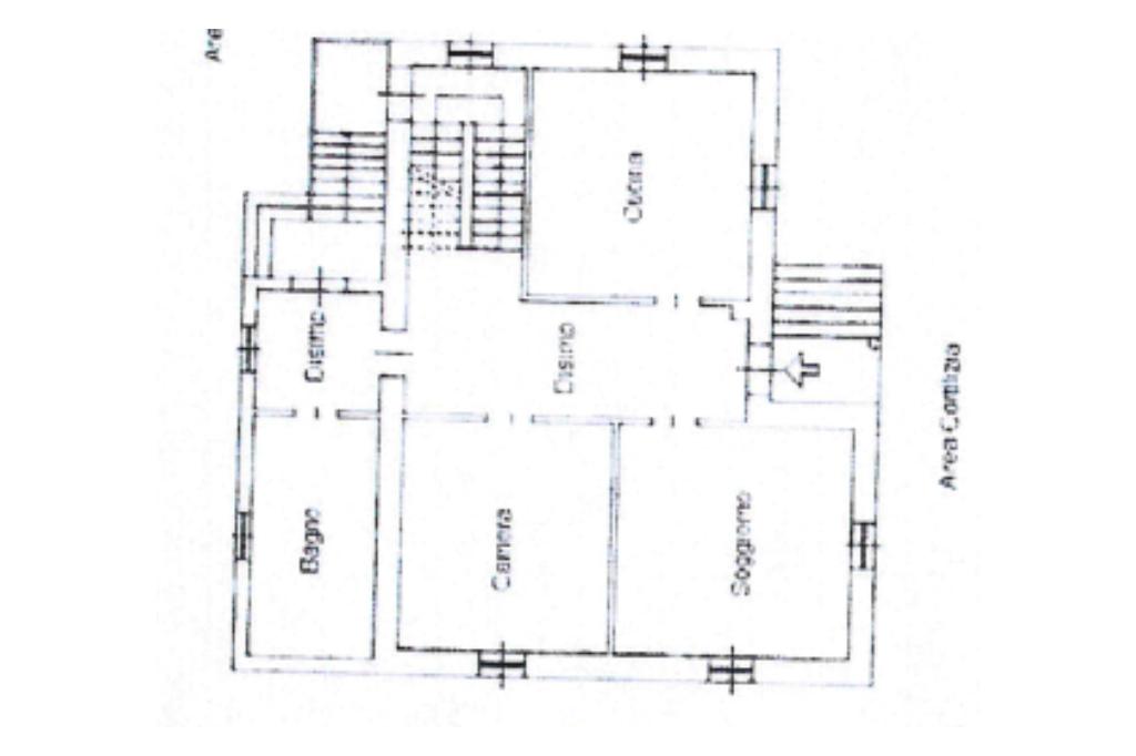
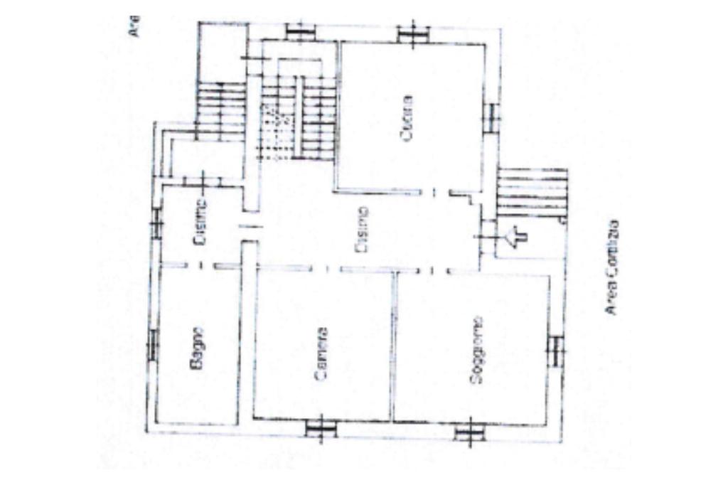
VIGNALE : In una zona tranquilla e ben servita, proponiamo una soluzione indipendente disposta su tre livelli, ideale per due famiglie o per chi desidera coniugare abitazione e spazi per il tempo libero, approfittando del magnifico giardino privato.

L’immobile si compone di due appartamenti distinti, ciascuno con ingresso indipendente. Entrambe le unità offrono un soggiorno ampio e luminoso, almeno due camere per piano, una cucina separata e un bagno, garantendo privacy e comfort. Al piano superiore si trova un sottotetto spazioso, perfetto da aver come ambiente aggiuntivo o da trasformare in una zona dedicata agli hobby o allo studio. All’esterno la proprietà è completata da una autorimessa di 67 mq, capace di accogliere più veicoli o da utilizzare come spazio di lavoro. Due balconi e un ampio terrazzo regalano spazi all’aperto ideali per momenti di relax e convivialità.

UFFICIO : 388/986/6806

Se è vostra intenzione VENDERE o AFFITTARE un immobile contattandoci allo 0521/84.13.99 o scrivendoci su whatsapp al 391/3210657 vi forniremo una VALUTAZIONE GRATUITA, in modo tale da tener aggiornato il valore secondo i recenti sviluppi del mercato immobiliare.
Se invece CERCATE in ACQUISTO o in AFFITTO un immobile, senza alcun impegno, vi forniremo maggiori indicazioni su ciò che è presente nel mercato, seguendovi costantemente nella vostra ricerca.

Se quello che state cercando in questo momento non è presente nelle nostre proposte, lasciate una richiesta nella nostra BANCA DATI presso l'ufficio TECNOCASA più vicino, indicando tutte le esigenze e le caratteristiche che dovrà avere la vostra futura abitazione.

Sarete contattati dal nostro Consulente di Zona, il quale cercherà il vostro immobile ideale.

Ogni agenzia ha un proprio titolare ed è autonoma - Le presenti informazioni non costituiscono elemento contrattuale.

Mostra tutto

Nelle vicinanze

Trasporto pubblico Trasporto pubblico
Trasporto pubblico
1,5 Km
San Polo
San Polo
2,4 Km
Ricariche auto elettriche Ricariche auto elettriche
San Polo d'Enza Borghi | EnelX
2,1 Km
SAN POLO D'ENZA Rampognana | ENELX
2,7 Km
Scuole Scuole
Istituto Tecnico Economico "M. L. Mainetti"
1,6 Km
Istituto Comprensivo Traversetolo
1,7 Km
Farmacia Farmacia
Rizzoli
1,4 Km
Parafarmacia
1,6 Km
San Martino
1,8 Km
Dottor Alfredo Margini
2,3 Km
Ospedali Ospedali
Casa della Salute
1,8 Km
Supermercati Supermercati
Piazza Cina
1,3 Km
U2
1,4 Km
Conad
1,5 Km
Famila
1,8 Km
Supermercati
2,4 Km
Negozi Negozi
La Casa del Pane
1,3 Km
Negozi
1,5 Km
Tema Sport
1,6 Km
Martelli
2,3 Km
Conad City
2,4 Km
Bar Bar
Caffè Centrale
1,5 Km
Bar
2,4 Km
Ristoranti Ristoranti
Colibri
1,5 Km
Ristoranti
1,5 Km
Il Ritrovo
1,7 Km
Maria Luigia
1,7 Km
Ristorante Pizzeria Ca' Della Valle
1,7 Km
Mostra tutto

Caratteristiche

Rif.:
61132412
Piano:
3 di 3 (Piano terra con giardino)
Box:
1
Posti auto:
2
Balconi:
1
Terrazzi:
1
Mostra tutto
Prezzo Prezzo
€ 180.000
Rata mutuo Rata mutuo
€ 827 / mese
Spese annue Spese annue
€ 0
Proponi il tuo prezzoProponi il tuo prezzo

Classe Energetica

G
G
G
G
G
G
G
G
G
EP globale non rinnovabile:
999.99 kW h/m² anno
EP globale rinnovabile:
999.99 kW h/m² anno
EP invernale del fabbricato:
EP estiva del fabbricato:
Anno di costruzione:
1970
Riscaldamento:
Autonomo
Tipo impianto:
A radiatori
Tipo alimentazione:
Metano

Ti interessa visionare l'immobile?

Fissa un appuntamento  Fissa un appuntamento

Richiedi informazioni

* Questi campi sono obbligatori

Calcola il tuo mutuo

Semplice e senza impegno
Anticipo

( % )
Mutuo

( % )

pochi semplici passi

inserisci i tuoi dati
Questionario completato
Grazie per aver richiesto un appuntamento senza impegno con un nostro Consulente del Credito e Assicurativo.

Hai inserito correttamente tutti i dati necessari e a breve riceverai una e-mail con un link da convalidare per inviare i tuoi dati.
Affiliato
Polaris Srls
St.da Pedemontana per Bannone, 8 43029 Traversetolo (PR)

Il nostro staff


  • Antimo Esposito
    Affiliato

  • Mona Maria Hamchou
    Coordinatrice

  • Alessandro Lucchetti
    Affiliato

  • Marife Apolito
    Collaboratrice
St.da Pedemontana per Bannone, 8 43029 Traversetolo (PR)
Zona: Traversetolo-Neviano degli Arduini-Monticelli Terme-Montechiarugolo-Botteghino
Mostra su mappa
Orari: Dal Lunedì al Venerdì: 9:00 - 13:00 / 15:00 - 20:00 Sabato: 10:00 - 18:00
Affiliato
Polaris Srls
St.da Pedemontana per Bannone, 8 43029 Traversetolo (PR)

2025 Tecnocasa Franchising S.p.A. - P. IVA 08365160152 - Via Monte Bianco 60/A 20089 Rozzano (MI). Ogni agenzia ha un proprio titolare ed è autonoma. Privacy policy | Policy utilizzo | Cookie policy