Quadrilocale in vendita

Vetto, Via Sole di Sopra - Sole Sotto
€ 99.000
Prezzo aggiornato
4 locali 4 locali
125 Mq 125 Mq
2 bagni 2 bagni

Quadrilocale in vendita

Vetto, Via Sole di Sopra - Sole Sotto

Descrizione annuncio

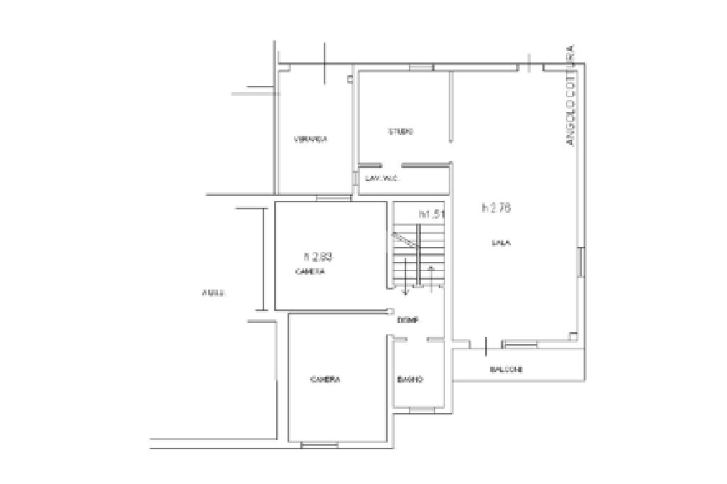
VETTO D'ENZA : In posizione tranquilla e defilata, a soli 2minuti dal centro del paese, luminosa porzione bifamiliare situata al primo piano con accesso indipendente.

Lo stabile è circondato da un coritle privato dove troviamo un posto auto a nostra disposizione.

Dalla porta d'ngresso accediamo al disimpegnoche funge da snodo per tutta l'abitazione, disposta su un unico piano.

La zona giorno, ampia e luminosa, presenta un ngolo cottura funzionale ed un soggiorno con camino. Proseguendo troviamo una camera matrimoniale con bagno privato.

La zona notte invece presenta altre due camere matrimoniali di cui una con accesso diretto ad una spaziosa veranda, perfetta per essere personalizzata in base alle proprie esigenze.

Completano la proprietà la cantina e il garage.

L'immobile è ideale per chi cerca la tranquillità della campagna, senza rinunciare alla vicinanza ai principali servizi.

REFERENTE: UFFICIO 388/986.68.06

Ulteriori informazioni possono essere fornite presso il nostro ufficio telefonicamente o seguendo la pagina Facebook o Instagram.

Se è vostra intenzione VENDERE o AFFITTARE un immobile contattandoci allo 0521/84.13.99 o scrivendoci su whatsapp al 391/3210657 vi forniremo una VALUTAZIONE GRATUITA, in modo tale da tener aggiornato il valore secondo i recenti sviluppi del mercato immobiliare.

Se invece CERCATE in ACQUISTO o in AFFITTO un immobile, senza alcun impegno, vi forniremo maggiori indicazioni su ciò che è presente nel mercato, seguendovi costantemente nella vostra ricerca.

Se quello che state cercando in questo momento non è presente nelle nostre proposte, lasciate una richiesta nella nostra BANCA DATI presso l'ufficio TECNOCASA più vicino, indicando tutte le esigenze e le caratteristiche che dovrà avere la vostra futura abitazione.

Sarete contattati dal nostro Consulente di Zona, il quale cercherà il vostro immobile ideale.

Ogni agenzia ha un proprio titolare ed è autonoma - Le presenti informazioni non costituiscono elemento contrattuale.

Mostra tutto

Nelle vicinanze

Ricariche auto elettriche Ricariche auto elettriche
Piazza Marconi Vetto
1,2 Km
Farmacia Farmacia
Farmacia Ferrari
1,2 Km
Negozi Negozi
Forno di Rino
1,2 Km
Costetti
1,2 Km
Bar Bar
Bar
1,2 Km
Ristoranti Ristoranti
Locanda del Rebecco
2,8 Km
Mostra tutto

Caratteristiche

Rif.:
60987225
Piano:
1 di 2 (Piano basso)
Box:
1
Posti auto:
1
Balconi:
1
Camere da letto:
3
Mostra tutto
Prezzo Prezzo
€ 99.000
Rata mutuo Rata mutuo
€ 454 / mese
Spese annue Spese annue
€ 0
Proponi il tuo prezzoProponi il tuo prezzo

Classe Energetica

E
E
E
E
E
E
E
E
E
EP globale non rinnovabile:
215.72 kW h/m² anno
Anno di costruzione:
1967
Riscaldamento:
Autonomo
Tipo impianto:
A radiatori
Tipo alimentazione:
Gasolio

Prezzo ridotto di €1 (10%%)

Ti interessa visionare l'immobile?

Fissa un appuntamento  Fissa un appuntamento

Richiedi informazioni

* Questi campi sono obbligatori

Calcola il tuo mutuo

Semplice e senza impegno
Anticipo

( % )
Mutuo

( % )

pochi semplici passi

inserisci i tuoi dati
Questionario completato
Grazie per aver richiesto un appuntamento senza impegno con un nostro Consulente del Credito e Assicurativo.

Hai inserito correttamente tutti i dati necessari e a breve riceverai una e-mail con un link da convalidare per inviare i tuoi dati.
Affiliato
Polaris Srls
St.da Pedemontana per Bannone, 8 43029 Traversetolo (PR)

Il nostro staff


  • Antimo Esposito
    Affiliato

  • Mona Maria Hamchou
    Coordinatrice

  • Alessandro Lucchetti
    Affiliato

  • Marife Apolito
    Collaboratrice
St.da Pedemontana per Bannone, 8 43029 Traversetolo (PR)
Zona: Traversetolo-Neviano degli Arduini-Monticelli Terme-Montechiarugolo-Botteghino
Mostra su mappa
Orari: Dal Lunedì al Venerdì: 9:00 - 13:00 / 15:00 - 20:00 Sabato: 10:00 - 18:00
Affiliato
Polaris Srls
St.da Pedemontana per Bannone, 8 43029 Traversetolo (PR)

2025 Tecnocasa Franchising S.p.A. - P. IVA 08365160152 - Via Monte Bianco 60/A 20089 Rozzano (MI). Ogni agenzia ha un proprio titolare ed è autonoma. Privacy policy | Policy utilizzo | Cookie policy